Rosenvoldsgate 15
Boligvelger
Bilder
Meld interesse
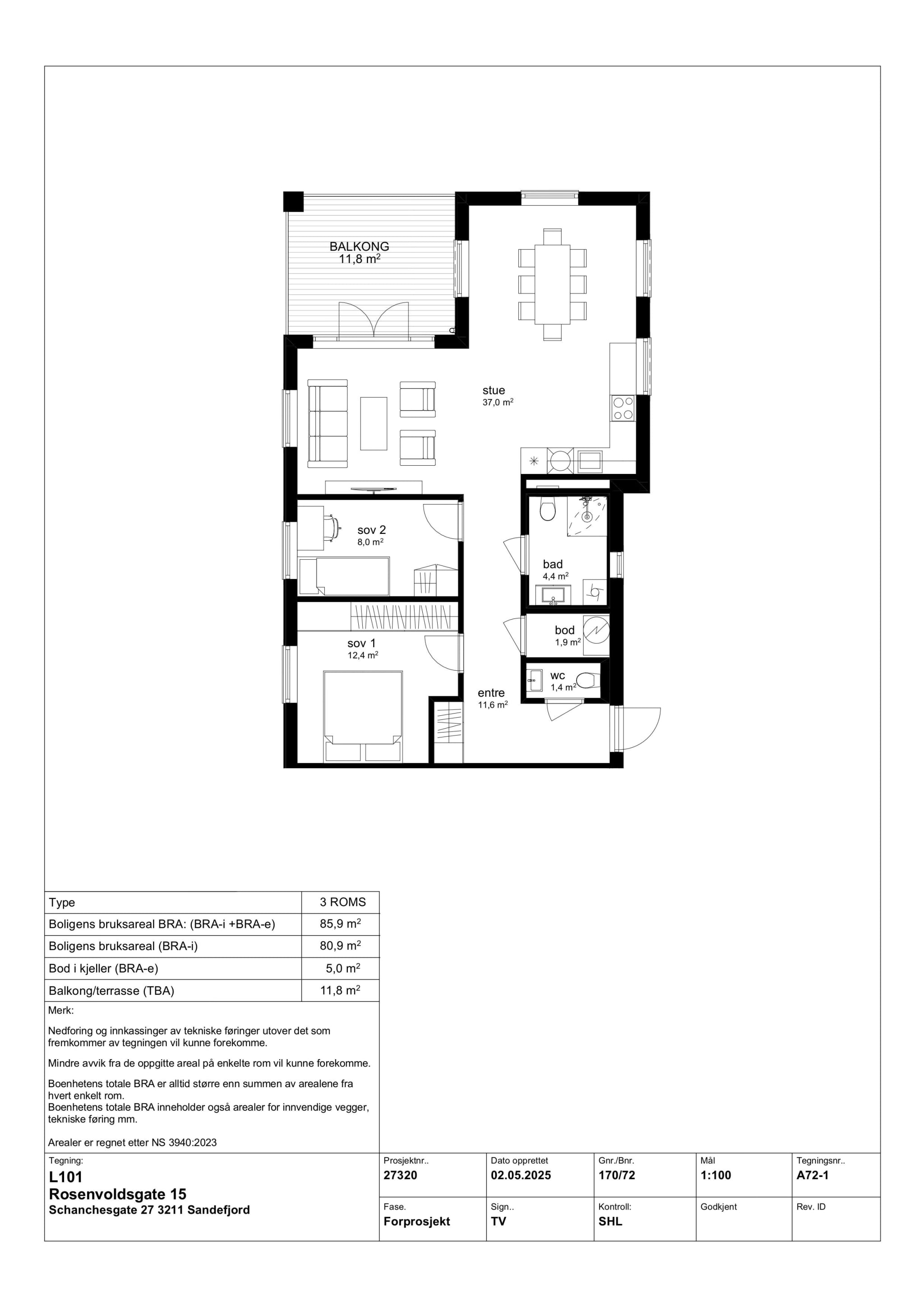
Leil. 101
Meld interesse
Kjøp
Status
Ledig
Totalpris
6 008 393
Pris
5 990 000
Balkong m²
11
Soverom
2
BRA
85
BRA-i
80
BRA-e
5
Etasje
1
Parkeringsplass
0
Omkostninger
18 393
Vedlegg
Meld interesse for enheten
Fyll inn navn
Fyll inn telefonnummer
Fyll inn e-post
Jeg ønsker å bli kontaktet i samtykke med denne
personvernerklæringen
Send
Powered by Plyo
Tilbake til Boligvelger